S-10 Mansion Singlewide
Model 8085
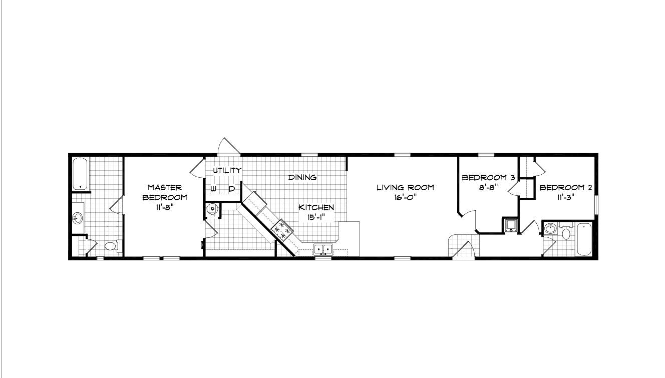
Singlewide S-10, 1,162 Square Feet, 16' x 80', 3 Bed 2 Bath
Inquire About This Home!
-36" 6-Panel Steel Front Door
-Hardwood Flat Panel Cabinet Doors
-Nickel Door Knobs
-High Density Carpent Padding
-One Piece Fiberglass Tubs
-30 Gallon Hot Water Heater
**With Many More Stadards Features!
-2x6 Wall Construction with R-19 Insulation
-R-30 Roof Insulation
-Flat 8' Ceilings
-OSB Floor Decking
-Full Finished Drywall w/Bullnose Corners
**With Many More Standard Features!

McArthur Office: 740-596-4024
MCARTHUR
58953 U.S. 50 McArthur, OH 45651
CHILLICOTHE
2983 Massieville Rd. Chillicothe, OH 45601
Cillicothe office: 740-663-2222
Manufactured Homes Commissions
OMHA
Disclaimer Note: Our inventory fluctuates with demand; the inventory shown is typical. For a complete list of standard features, please see your sales representative.
Remy’s is Your Full Line Manufactured Housing Dealer: Single & Multi Section HUD & State Code Modular Homes.